コストパフォーマンスに優れた高気密・高断熱住宅 コストパフォーマンスに優れた高気密・高断熱住宅

Menu

Menu

コストパフォーマンスに優れた高気密・高断熱住宅

"SANKOの高性能な住まいをより多くのお客様に届けるために。
コストパフォーマンスを重視した性能も価格も妥協しない「住んでからもずっと安心していただきたい」
そんな思いを家づくりとして形にした理想の住まいです。"

  • Ua値0.4
  • C値0.1

Point

陽の特長

  • より多くの家族に届けるために性能も価格も妥協しない住まい

    01

    より多くの家族に届けるために性能も価格も妥協しない住まい

    SANKOの家ラインナップの中でも特にコストパフォーマンスを重視した住まい。
    建てた後も余裕を持って生活を愉しむことができるように、お客様のご要望を“適正価格”で実現することを大切にし、岡山県内の多くのご家族に健康で快適な住まいに住んで欲しいという想いから生まれました。

  • SANKOの家は全商品HEAT20G2以上の住まい

    02

    SANKOの家は全商品HEAT20G2以上の住まい

    コストパフォーマンスを重視した住まいでも他社を圧倒する性能を誇ります。
    「陽」ではペアガラスを採用してもSANKO独自の気密工法と高断熱を実現するW断熱、高品質な断熱材でHEAT20G2レベルの住まいを実現。
    岡山一の高性能住宅ビルダーを目指すからこそ、多くの家族が手の届く高性能な住まいをご提案します。

  • 快適で心地良い まるごと自然素材の住まい

    03

    快適で心地良い まるごと自然素材の住まい

    "自然素材はあたたかさに包まれる空間、木の香りによるリラックス効果、有害物質の少ない環境。
    さらに経年変化による傷も味わい深いものになります。
    家族の心と体を豊かにしてくれる、住まう人の健康を何よりも大切にできる「自然素材」の家づくりを徹底します。"

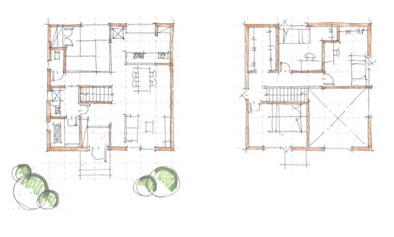
Plan

参考間取りプラン

  • LDKの大きな吹き抜けで開放感のある住まい
  • LDKの大きな吹き抜けで開放感のある住まい

    和室やリビング階段で家族とのコミュニケーションを活発に

    和室や吹き抜け、リビング階段などこだわりが多く詰まった住まいです。
    こだわり以外にも2階の広々としたウォークインクローゼットや水廻りをまとめた家事ラク導線など暮らしやすさも追求しています。

    LDKの大きな吹き抜けで開放感のある住まい
    LDKの大きな吹き抜けで開放感のある住まい
    LDKの大きな吹き抜けで開放感のある住まい